Search

Leave a Message

By providing your contact information to The Agency Reno, your personal information will be processed in accordance with The Agency Reno's Privacy Policy. By checking the box(es) below, you expressly consent to receive marketing or promotional real estate communication from The Agency Reno in the manner selected by you. For SMS text messages, message frequency varies. Message and data rates may apply. Consent is not a condition of purchase of any goods or services. You may opt out of receiving further communications from The Agency Reno at any time. To opt out of receiving SMS text messages, reply STOP to unsubscribe. SMS text messaging is subject to our Terms of Use.

Thank you for your message. We will be in touch with you shortly.

Explore Our Properties

Property Description

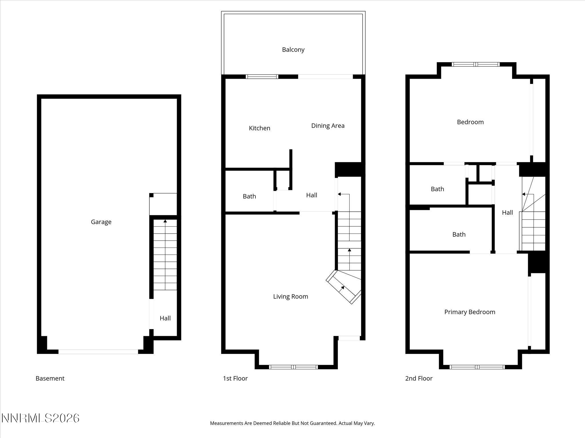
Welcome to Rancho Hills, where comfort, convenience, and location come together in this Desert Wind Homes townhome. This home features dual master suites, a functional kitchen with stainless steel appliances, and a spacious tandem two-car garage with --offering plenty of space and potential. Ideally located just minutes from UNR, TMCC, and easy freeway access, you'll enjoy the convenience of city living while being close to the trails and natural beauty of San Rafael Regional Park. With a desirable central Reno location and room to make it your own, this property is a great opportunity for first-time buyers, investors, or anyone looking to add personal touches and build value. Opportunities like this in central Reno don't come around often--don't miss it! Agents- Please see private remarks.

Overview

Property Status
Active Under Contract
Lot Size
1,211 Sq.Ft.
MLS ID
260002711
Property Type
Townhouse
Year Built
2007

Features & Amenities

Total Area
1,302 Sq.Ft.
Neighborhood
Reno
View Description
Mountain(s)
Stories
3
Garage Spaces
2.0
Water Source
Public
Utilities
Cable Available, Cable Connected, Electricity Available, Electricity Connected, Internet Connected, Natural Gas Available, Natural Gas Connected, Phone Available, Sewer Available, Sewer Connected, Water Available, Water Connected, Water Meter Installed
Roof
Composition, Pitched
Lot Features
Common Area
Parking
Attached, Garage, Garage Door Opener, Tandem
Heat Type
Forced Air, Natural Gas
Air Conditioning
Central Air, Electric
Laundry Room
In Hall
Appliances
Dishwasher, Dryer, Gas Cooktop, Gas Range, Microwave, Refrigerator, Washer
Other Interior Features
High Ceilings
Sewer
Public Sewer
Substructure
Slab
HOA Amenities
Parking
Security Features
Smoke Detector(s)
Other Exterior Features
Balcony, Rain Gutters
Elementary School
Elmcrest
Middle School
Clayton
High School
McQueen
Sales Price
$359,900
Real Estate Tax
$1,608/yr
HOA
$200/mo
Zoning
MF14

Downloads

4795 Ciarra Kennedy Lane

Schedule a Tour

We would love to help you see this beautiful home! As a full-service brokerage, we can help you tour. Please submit an offer, and answer questions about the buying process.

Thank you

for your interest in 4795 Ciarra Kennedy Lane, Reno, NV 89503

4795 Ciarra Kennedy Lane
Navigate
Reno

Explore Reno

read more
  • Welcome to Rancho Hills, where comfort, convenience, and location come together in this Desert Wind Homes townhome.

    The Agency Reno

Mortgage Calculator

Estimate your monthly mortgage payment, including the principal and interest, property taxes, and HOA. Adjust the values to generate a more accurate rate.
$0,000 Your Payment 20 15 65
$0,000 Your Payment

I'm Interested In

4795 Ciarra Kennedy Lane

or
  • CallMonira West

    License #S.170641

    (775) 881-8234
  • Explore Other

    Featured Properties

    • 2250 Copper Brand Drive For Sale

      $815,000

      2250 Copper Brand Drive, Reno, NV 89521

      • 2 Beds
      • 2 Baths
      • 1,663 Sq.Ft.
    • 911 F Street Active Under Contract

      $629,000

      911 F Street, Sparks, NV 89431

      • 4 Beds
      • 2 Baths
      • 2,248 Sq.Ft.
    • 2578 Blossom View Lane Active Under Contract

      $474,000

      2578 Blossom View Lane, Carson City, NV 89701

      • 3 Beds
      • 3 Baths
      • 1,560 Sq.Ft.
    • 2320 Silver Sage Drive For Sale

      $429,000

      2320 Silver Sage Drive, Carson City, NV 89701

      • 3 Beds
      • 1 Bath
      • 1,008 Sq.Ft.
    • 4795 Ciarra Kennedy Lane Active Under Contract

      $359,900

      4795 Ciarra Kennedy Lane, Reno, NV 89503

      • 2 Beds
      • 3 Baths
      • 1,302 Sq.Ft.
    • 39 Granite Way For Sale

      $359,000

      39 Granite Way, Carson City, NV 89706

      • 2 Beds
      • 1 Bath
      • 824 Sq.Ft.
    View All Properties

    Follow Us On Instagram